Budapest, XI. kerület Mohai út
Mohai út, kiadó 82 m2 -es tégla építésű lakás
Modern, újépítésű lakás kiadó Újbuda zöldövezeti részén, a Mohai úton
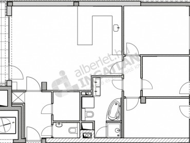
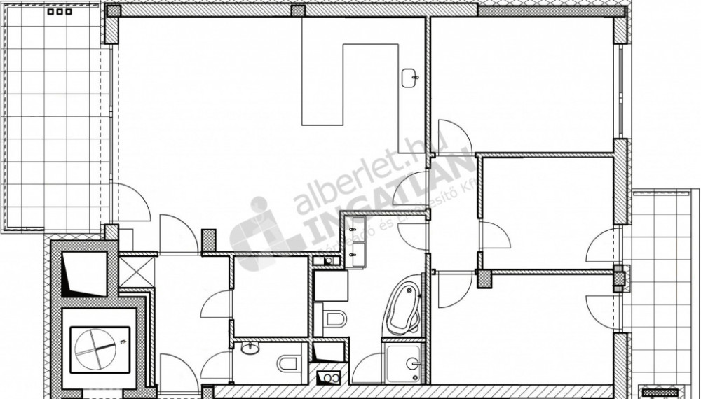
A XI. kerület egyik legkedveltebb, csendes, mégis központi részén, a Mohai úton, 2024-ben átadott, liftes társasházban kínálunk bérbe egy 82 m²-es, 2. emeleti, világos lakást két terasszal, mélygarázsos parkolóhellyel. Az ingatlan egy parkosított, nyugodt környezetre néz, így ideális választás mindazoknak, akik a városi kényelemről nem szeretnének lemondani, mégis természetközeli otthonra vágynak.
A lakás elrendezése átgondolt és praktikus: tágas nappalija a nagy üvegfelületeknek köszönhetően egész nap napfényben úszik, a három külön nyíló hálószoba pedig kényelmes életteret biztosít családnak vagy akár otthoni munkához. A modern, gépesített konyha és a stílusos, kádas-zuhanyzós fürdőszoba magas minőséget képvisel, a külön vendégmosdó pedig növeli a komfortérzetet.
A lakásban hőszivattyús, házközponti padlófűtés gondoskodik az ideális hőmérsékletről, míg a nappaliban található klíma a nyári hónapokban biztosít kellemes klímát. Az ablakok motoros redőnnyel és zsalúziával ellátottak, így minden részlet a kényelmet szolgálja. A berendezés igényes és modern: beépített előszobabútor, kanapé, étkező, franciaágy, szekrények és háztartási gépek is rendelkezésre állnak, így a lakás azonnal költözhető, csak személyes tárgyait kell hoznia az új bérlőnek.
A környék infrastruktúrája kiváló: a metró, busz- és villamosmegállók néhány perc sétára találhatók, a közelben pedig minden fontos szolgáltatás elérhető – iskolák, óvodák, bevásárlási lehetőségek, éttermek, kávézók és sportlétesítmények. A Kopaszi-gát és a Bikás park is könnyen megközelíthető, így a kikapcsolódásra is bőven ad lehetőséget a környék.
A lakás bérleti díja 750.000 Ft/hó, a mélygarázsos parkolóhely 50.000 Ft/hó, a közös költség 60.720 Ft/hó, amely magában foglalja a fűtés- és vízhasználat becsült díját, valamint a kertgondozás, takarítás és szemétszállítás költségeit is. Az áram fogyasztás szerint fizetendő. Két havi kaució szükséges.
A lakás nemdohányzó, kisállat nem hozható.
Tiszta, modern és igényes otthon, amely azonnal birtokba vehető, új bérlőjét várja.
***ENGLISH***
Modern, newly built apartment for rent in the green belt of Újbuda, on Mohai út
In one of the most popular, quiet, yet central areas of District XI, in a condominium with an elevator, handed over in 2024, we offer for rent an 82 m², 2nd floor, bright apartment with two terraces and an underground parking space. The property overlooks a landscaped, peaceful environment, making it an ideal choice for anyone who does not want to give up urban comfort, but still wants a home close to nature.
The layout of the apartment is thoughtful and practical: its spacious living room is bathed in sunlight all day thanks to the large glass surfaces, and the three separate bedrooms provide a comfortable living space for the family or even for working from home. The modern, mechanized kitchen and the stylish bathroom with bathtub and shower represent high quality, and the separate guest toilet increases the feeling of comfort.
The apartment has a heat pump, central floor heating ensures the ideal temperature, while the air conditioner in the living room provides a pleasant climate in the summer months. The windows are equipped with motorized shutters and shutters, so every detail is for comfort. The furnishings are high-quality and modern: built-in hallway furniture, sofa, dining room, double bed, wardrobes and household appliances are also available, so the apartment can be moved in immediately, the new tenant only needs to bring their personal belongings.
The infrastructure of the area is excellent: metro, bus and tram stops are a few minutes' walk away, and all important services are available nearby – schools, kindergartens, shopping facilities, restaurants, cafes and sports facilities. The Kopaszi Dam and Bikás Park are also easily accessible, so the area also offers plenty of opportunities for recreation.
The rent of the apartment is HUF 750,000/month, the underground parking space is HUF 50,000/month, the common cost is HUF 60,720/month, which includes the estimated fee for heating and water use, as well as the costs of garden maintenance, cleaning and garbage collection. Electricity is paid according to consumption. A two-month deposit is required.
The apartment is non-smoking, pets are not allowed.
A clean, modern and high-quality home that can be taken into possession immediately, waiting for its new tenant.
A XI. kerület egyik legkedveltebb, csendes, mégis központi részén, a Mohai úton, 2024-ben átadott, liftes társasházban kínálunk bérbe egy 82 m²-es, 2. emeleti, világos lakást két terasszal, mélygarázsos parkolóhellyel. Az ingatlan egy parkosított, nyugodt környezetre néz, így ideális választás mindazoknak, akik a városi kényelemről nem szeretnének lemondani, mégis természetközeli otthonra vágynak.
A lakás elrendezése átgondolt és praktikus: tágas nappalija a nagy üvegfelületeknek köszönhetően egész nap napfényben úszik, a három külön nyíló hálószoba pedig kényelmes életteret biztosít családnak vagy akár otthoni munkához. A modern, gépesített konyha és a stílusos, kádas-zuhanyzós fürdőszoba magas minőséget képvisel, a külön vendégmosdó pedig növeli a komfortérzetet.
A lakásban hőszivattyús, házközponti padlófűtés gondoskodik az ideális hőmérsékletről, míg a nappaliban található klíma a nyári hónapokban biztosít kellemes klímát. Az ablakok motoros redőnnyel és zsalúziával ellátottak, így minden részlet a kényelmet szolgálja. A berendezés igényes és modern: beépített előszobabútor, kanapé, étkező, franciaágy, szekrények és háztartási gépek is rendelkezésre állnak, így a lakás azonnal költözhető, csak személyes tárgyait kell hoznia az új bérlőnek.
A környék infrastruktúrája kiváló: a metró, busz- és villamosmegállók néhány perc sétára találhatók, a közelben pedig minden fontos szolgáltatás elérhető – iskolák, óvodák, bevásárlási lehetőségek, éttermek, kávézók és sportlétesítmények. A Kopaszi-gát és a Bikás park is könnyen megközelíthető, így a kikapcsolódásra is bőven ad lehetőséget a környék.
A lakás bérleti díja 750.000 Ft/hó, a mélygarázsos parkolóhely 50.000 Ft/hó, a közös költség 60.720 Ft/hó, amely magában foglalja a fűtés- és vízhasználat becsült díját, valamint a kertgondozás, takarítás és szemétszállítás költségeit is. Az áram fogyasztás szerint fizetendő. Két havi kaució szükséges.
A lakás nemdohányzó, kisállat nem hozható.
Tiszta, modern és igényes otthon, amely azonnal birtokba vehető, új bérlőjét várja.
***ENGLISH***
Modern, newly built apartment for rent in the green belt of Újbuda, on Mohai út
In one of the most popular, quiet, yet central areas of District XI, in a condominium with an elevator, handed over in 2024, we offer for rent an 82 m², 2nd floor, bright apartment with two terraces and an underground parking space. The property overlooks a landscaped, peaceful environment, making it an ideal choice for anyone who does not want to give up urban comfort, but still wants a home close to nature.
The layout of the apartment is thoughtful and practical: its spacious living room is bathed in sunlight all day thanks to the large glass surfaces, and the three separate bedrooms provide a comfortable living space for the family or even for working from home. The modern, mechanized kitchen and the stylish bathroom with bathtub and shower represent high quality, and the separate guest toilet increases the feeling of comfort.
The apartment has a heat pump, central floor heating ensures the ideal temperature, while the air conditioner in the living room provides a pleasant climate in the summer months. The windows are equipped with motorized shutters and shutters, so every detail is for comfort. The furnishings are high-quality and modern: built-in hallway furniture, sofa, dining room, double bed, wardrobes and household appliances are also available, so the apartment can be moved in immediately, the new tenant only needs to bring their personal belongings.
The infrastructure of the area is excellent: metro, bus and tram stops are a few minutes' walk away, and all important services are available nearby – schools, kindergartens, shopping facilities, restaurants, cafes and sports facilities. The Kopaszi Dam and Bikás Park are also easily accessible, so the area also offers plenty of opportunities for recreation.
The rent of the apartment is HUF 750,000/month, the underground parking space is HUF 50,000/month, the common cost is HUF 60,720/month, which includes the estimated fee for heating and water use, as well as the costs of garden maintenance, cleaning and garbage collection. Electricity is paid according to consumption. A two-month deposit is required.
The apartment is non-smoking, pets are not allowed.
A clean, modern and high-quality home that can be taken into possession immediately, waiting for its new tenant.
Kerület XI
Település Budapest
Kerületrész Kelenföld
Típus Tégla építésű lakás
Szobaszám 3+1
Közös költség 60 720 000 Ft/hó
Emelet 2
Erkély / Terasz 20 m2
Berendezés Berendezett
Állapot Felújított
Lift Van
Fűtés Hőszivattyú
Kilátás Panorámás
Parkolás Garázs
Légkondícionált Igen
Minimum bérleti idő 12 hónap
Üzenetküldés
Küldjön üzenetet a kapcsolattartónak erre a hirdetésre vonatkozóan




















