Gyömrő, Nefelejcs utca
Nefelejcs utca, 50 m2 detached house for rent
Renovated family house in Gyömrő can be moved in immediately FOR RENT!
In a quiet, peaceful area of Gyömrő near Budapest, a renovated house awaits adult tenants who want to move in for a minimum of one year. The property can be moved in immediately, equipped with shutters and mosquito nets, basically unfurnished, but the furnishings can be discussed on request.
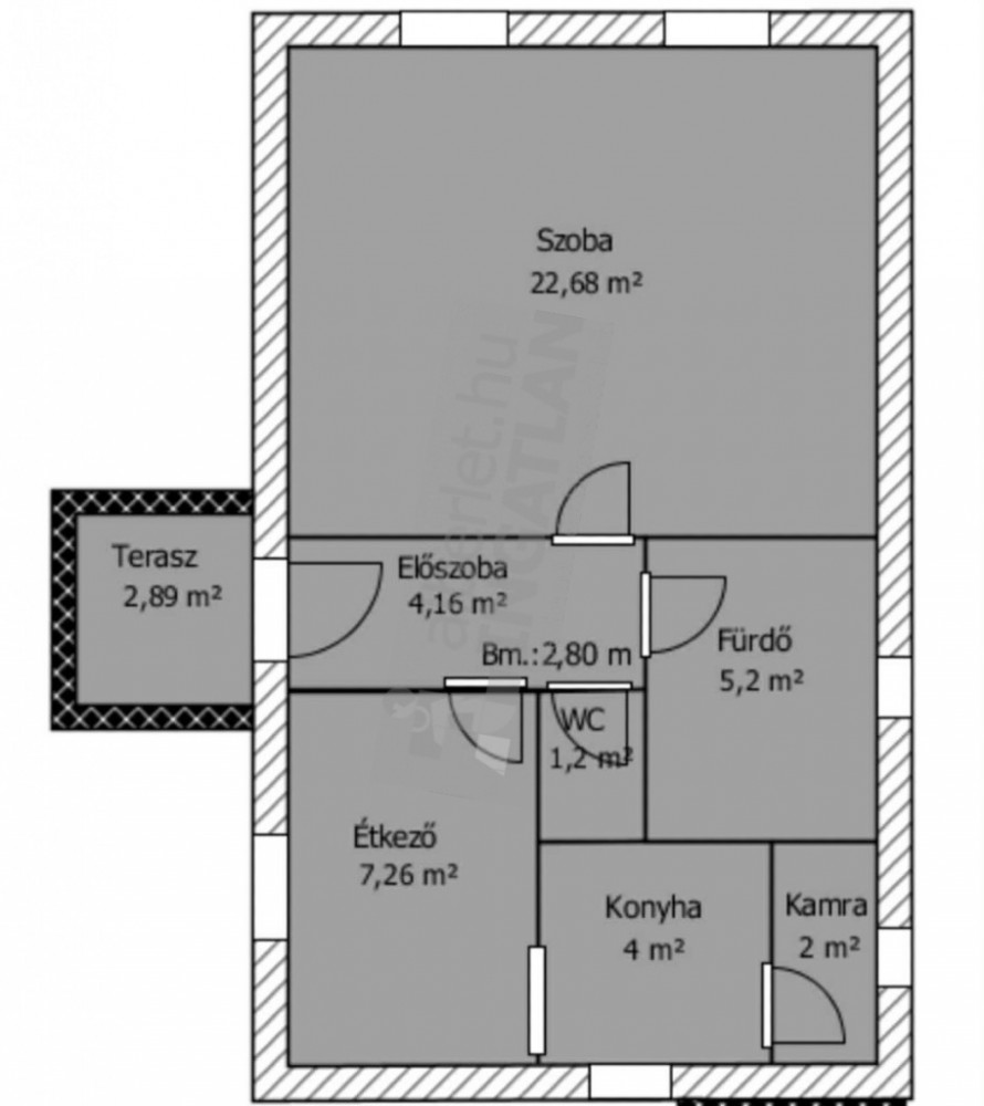
Layout:
• 1 spacious room
•Kitchen
•Lunchroom
•Chamber
• Bathroom with shower
• Separate toilet
Heating / hot water: gas boiler / electric boiler
Energy Certificate of the House: JJ
Who is it ideal for?
For tenants who lead a quiet lifestyle, love the courtyard, and are demanding of themselves and their environment.
Minimum rental period: 1 year
Pets are not allowed, smoking is not allowed in the house, only in the yard.
In a quiet, peaceful area of Gyömrő near Budapest, a renovated house awaits adult tenants who want to move in for a minimum of one year. The property can be moved in immediately, equipped with shutters and mosquito nets, basically unfurnished, but the furnishings can be discussed on request.
Layout:
• 1 spacious room
•Kitchen
•Lunchroom
•Chamber
• Bathroom with shower
• Separate toilet
Heating / hot water: gas boiler / electric boiler
Energy Certificate of the House: JJ
Who is it ideal for?
For tenants who lead a quiet lifestyle, love the courtyard, and are demanding of themselves and their environment.
Minimum rental period: 1 year
Pets are not allowed, smoking is not allowed in the house, only in the yard.
Settlement Gyömrő
Type Detached house
Rooms 1
Furniture Empty
Condition Renovated
Heating Cirko system
View Court
Parking Parking space
Bathroom / Toilet Separated
Shortest rental period 12 months
Shower / Bathtub Shower
Send message
Send a message to the advertiser about this property

















