Budapest, district VI. Ó utca
Ó utca, 162 m2 brick apartment for rent
Would you like to rent a large apartment or two apartments next to each other?
Excellent location, FAMILY FRIENDLY, LARGE apartment
In Budapest, in District VII, near the Arany János Street metro station, in Ó Street, a bright, well-distributed, 3rd floor, 162 m², apartment with a total of 5 rooms, but also for rent as two separate, independent apartments.
It can be ideal for FAMILIES, UNIVERSITY STUDENTS, or even COMPANIES of different sizes!
Thanks to the layout of the property, it can be used as two apartments.
More apartments are available!
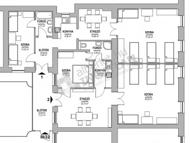
Common hall 11 m2
There is no elevator in the house, but the upper floors are quieter and provide a calmer apartment.
5 separate rooms, high ceilings.
The apartment is equipped with a washing machine, microwave, washing machine, electric hob.
Both apartments have a bathroom with shower and a toilet in one.
1 APARTMENT:
- foreground
- kitchen
- dining room
- bath
- Room 32m2
- room 14.5 m2
Total: 73 m2
2 APARTMENTS
- foreground
- bath
-kitchen
- Room 11 m2
- room 11.75
- room 35.5
Total: 78 m2
An apartment with excellent transport and easy accessibility, the Arany János Street metro station is a few minutes' walk away, so any point of the city can be reached quickly and easily.
Features of RENTAL:
- minimum 1-year lease
- smoking is not allowed
- can be moved in after paying a 2-month deposit + 1 month's rent
- signing a notarial declaration
If you are interested in the advertisement, feel free to contact us!
Our services are free of charge for our search clients!
Excellent location, FAMILY FRIENDLY, LARGE apartment
In Budapest, in District VII, near the Arany János Street metro station, in Ó Street, a bright, well-distributed, 3rd floor, 162 m², apartment with a total of 5 rooms, but also for rent as two separate, independent apartments.
It can be ideal for FAMILIES, UNIVERSITY STUDENTS, or even COMPANIES of different sizes!
Thanks to the layout of the property, it can be used as two apartments.
More apartments are available!
Common hall 11 m2
There is no elevator in the house, but the upper floors are quieter and provide a calmer apartment.
5 separate rooms, high ceilings.
The apartment is equipped with a washing machine, microwave, washing machine, electric hob.
Both apartments have a bathroom with shower and a toilet in one.
1 APARTMENT:
- foreground
- kitchen
- dining room
- bath
- Room 32m2
- room 14.5 m2
Total: 73 m2
2 APARTMENTS
- foreground
- bath
-kitchen
- Room 11 m2
- room 11.75
- room 35.5
Total: 78 m2
An apartment with excellent transport and easy accessibility, the Arany János Street metro station is a few minutes' walk away, so any point of the city can be reached quickly and easily.
Features of RENTAL:
- minimum 1-year lease
- smoking is not allowed
- can be moved in after paying a 2-month deposit + 1 month's rent
- signing a notarial declaration
If you are interested in the advertisement, feel free to contact us!
Our services are free of charge for our search clients!
District VI
Settlement Budapest
Sub-district Terézváros
Type Brick apartment
Rooms 5
Separated rooms 5
Common cost 40,000 HUF/month
Floor 3
Overhead cost 40,000 HUF/month
Furniture Furnished
Condition Good condition
Heating Electric
View Court
Parking Parking zone
Bathrooms 2
Bathroom / Toilet Connected
Shortest rental period 12 months
Shower / Bathtub Shower
Send message
Send a message to the advertiser about this property







