Budapest, district VII. Murányi utca
Murányi utca, 68 m2 brick apartment for rent
Loft style, sunny, corner apartment for rent in Murányi Street near the City Park – District VII
In a popular area of Budapest's 7th district, in Erzsébetváros, in the immediate vicinity of the City Park, a newly renovated, 68 m², 2nd floor, loft-style corner apartment with a special atmosphere is available for long-term rent.
The apartment is extremely spacious and bright, with generous spaces, windows overlooking two streets, and a ceiling height of 3 meters, which further increases the sense of space.
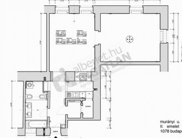
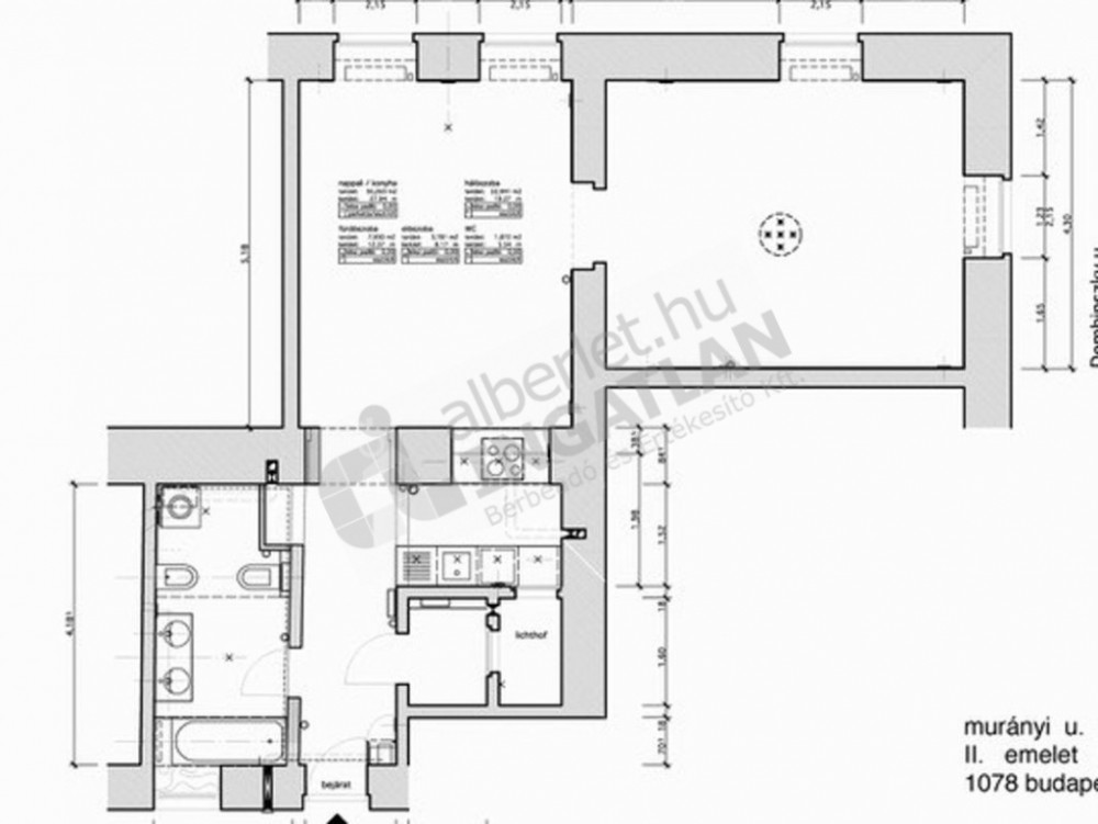
Layout:
Two open rooms + kitchen
hallway
Bathroom
small storage (can be converted into a separate toilet if required)
The apartment is unfurnished, but at the same time mechanized:
Stove
washing machine
dishwasher
Combination refrigerator
Technical features:
Custom Meters
combi gas circulating heater
low overhead costs
The apartment can be moved immediately.
Rental conditions:
Deposit equivalent to 2 months' rent
notarial declaration of moving out
It is an ideal choice for those who are looking for a sophisticated, characterful, downtown home with an excellent location and great transportation.
In a popular area of Budapest's 7th district, in Erzsébetváros, in the immediate vicinity of the City Park, a newly renovated, 68 m², 2nd floor, loft-style corner apartment with a special atmosphere is available for long-term rent.
The apartment is extremely spacious and bright, with generous spaces, windows overlooking two streets, and a ceiling height of 3 meters, which further increases the sense of space.
Layout:
Two open rooms + kitchen
hallway
Bathroom
small storage (can be converted into a separate toilet if required)
The apartment is unfurnished, but at the same time mechanized:
Stove
washing machine
dishwasher
Combination refrigerator
Technical features:
Custom Meters
combi gas circulating heater
low overhead costs
The apartment can be moved immediately.
Rental conditions:
Deposit equivalent to 2 months' rent
notarial declaration of moving out
It is an ideal choice for those who are looking for a sophisticated, characterful, downtown home with an excellent location and great transportation.
District VII
Settlement Budapest
Sub-district Külső-Erzsébetváros
Type Brick apartment
Rooms 2
Common cost 23,000 HUF/month
Floor 2
Overhead cost 15,000 HUF/month
Energiatanusítvány C
Furniture Empty
Condition Renovated
Heating Cirko system
View Street
Parking Parking zone
Shortest rental period 12 months
Send message
Send a message to the advertiser about this property


















